Aix-les-Bains (73100)
Appartement VEFA Gresy Sur Aix - Normes RE2020 - Terrasses.
952 000 € FAI
4 pièces
133 m²
À propos
Aux portes d'Aix-les-Bains, découvrez L'Eden Parc, une résidence idéalement située au coeur de Grésy-sur-Aix, dans un quartier proche de tous commerces et en plein développement.
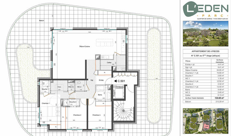
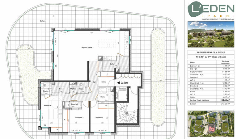
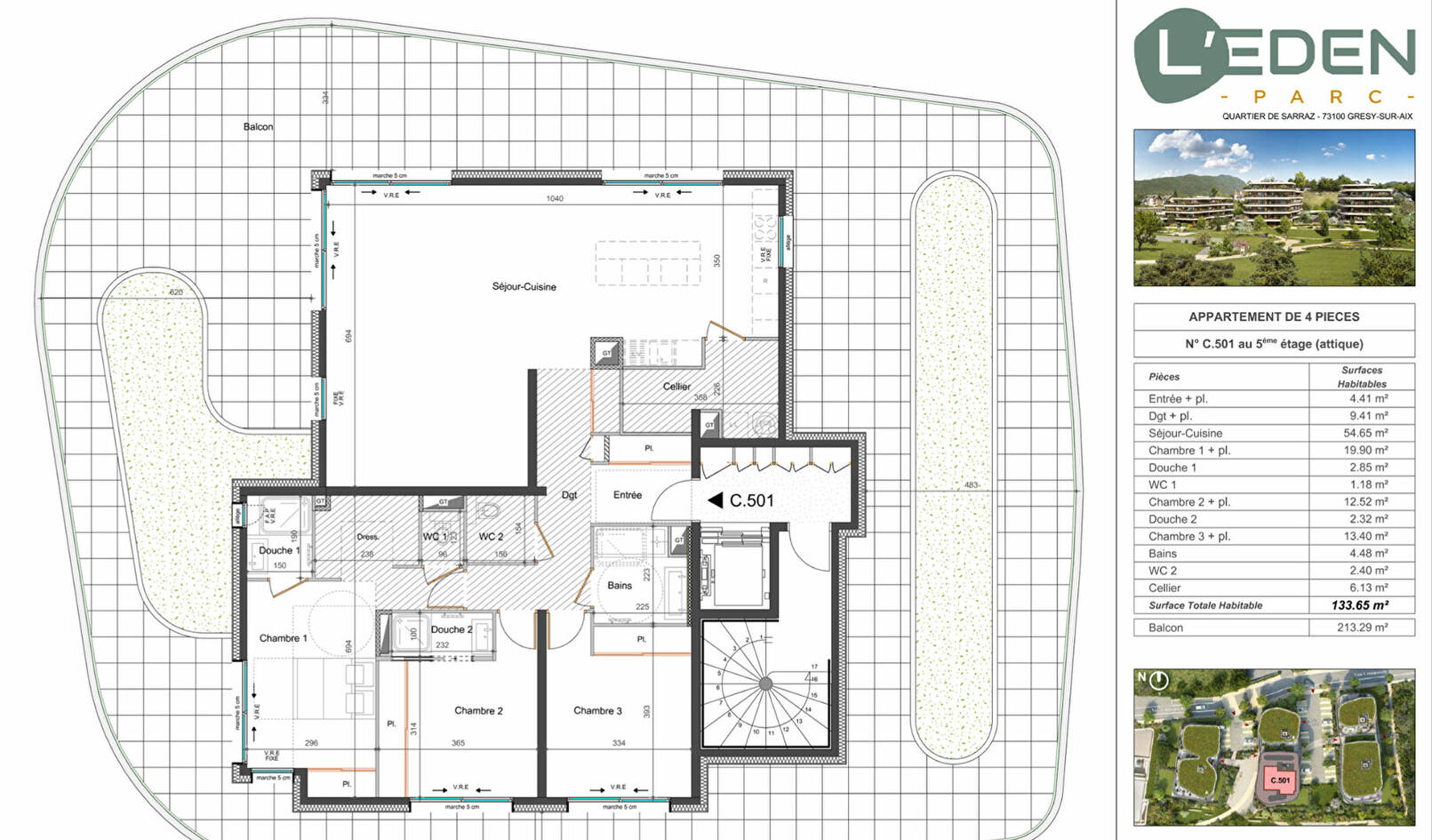
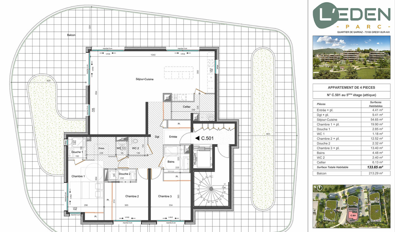
Appartement attique de 133m2 et une terrasse privative de plus de 200m2
Ce programme à l'architecture contemporaine est répartis sur trois bâtiments à taille humaine, conçus dans le respect de l'environnement et de l'harmonie du site. Les volumes aérés et la densité maîtrisée offrent un cadre de vie agréable, alliant modernité et confort.
Pensée pour le bien-être de ses occupants, la résidence bénéficie de prestations haut de gamme, avec notamment un chauffage par géothermie et plancher chauffant hydraulique.
Sécurité et qualité sont également au rendez-vous : accès sécurisé par visiophone et système Vigik, volets roulants motorisés, carrelage grand format en grès cérame.
Livraison prévue : 1er semestre 2028
Un programme idéal pour habiter ou investir, à proximité immédiate des commerces, services et axes reliant Aix-les-Bains et son bassin de vie.
Renseignements tarifs et plans sur simple demande.
Tarif pour un T4 dernier étage, parking et cave en option.
Frais de notaire réduit
François Picollier (EI) Agent Commercial - Numéro RSAC : 841 755 416 - Chambery.
Diagnostic énergétique
Diagnostic de performance énergétique
A 25
Indice d'émission de gaz à effet de serre
A 2
Informations générales
| Surface habitable : 133 m² | 4 pièces |
| Superficie terrain : 213 m² | 3 chambres |
| Honoraires : 45 696 € charge vendeur | 1 salle de bain |
| 2 douches | 2 WC |
| Cuisine ouverte | 1 ascenseur |
| 1 intercom |
Chauffage
| Format : | Collectif comptage individuel |
A propos du prix
Honoraires à la charge du vendeur
Honoraires TTC inclus à la charge du vendeur à % du prix du bien hors honoraires.
Prix du bien honoraires inclus: 952 000 €

Logement très performant
Logement extrêmement consommateur d'énergie
Peu d'émission CO2
Emission de CO2 très importantes
Recevez notre plaquette
Renseignez notre formulaire pour télécharger notre plaquette




